Mill Hill NW7
Price: £575,000
Council Tax Band: E
Leasehold
Enquire 020 8445 6387
-
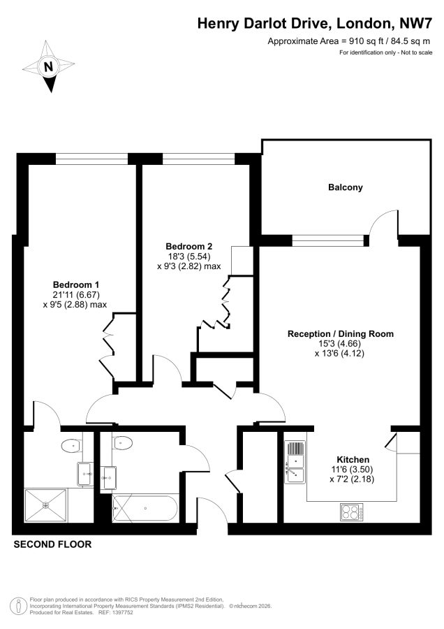
Real Estates are delighted to present this modern 2 BEDROOM, 2 BATHROOM apartment set in a highly sought-after building within the popular Millbrook Park development in Mill Hill East.
This large 2nd floor flat boasts a stylish open plan kitchen and living space, with double doors providing access onto a PRIVATE BALCONY offering far-reaching views of London. The property also features 2 double bedrooms, both with fitted wardrobes and 1 en-suite, plus a separate family bathroom and storage cupboard off the main hallway. Each room also has floor to ceiling south-facing windows, flooding the property with natural light.
Garrison Heights is ideally located for Mill Hill East Underground Station on the Northern Line, as well as Panoramic Park directly opposite and a plethora of shops and cafes at the nearby Sussex Ring, Woodside Park and Holders Hill Circus.
ALLOCATED UNDERGROUND PARKING SPACE. LEASE REMAINING: 991 YEARS. SERVICE CHARGE: £1851.84 GROUND RENT: £350 PA
-
Garrison Heights
55
Henry Darlot Drive Mill Hill
NW7 1RF
- PDF Brochure
Floor Plan


