Totteridge N20
Monthly Rental of: £4,995 PCM
Deposit: ££6,916
Length of Tenancy: Long
Council Tax Band: G
Enquire 020 8445 6387
-
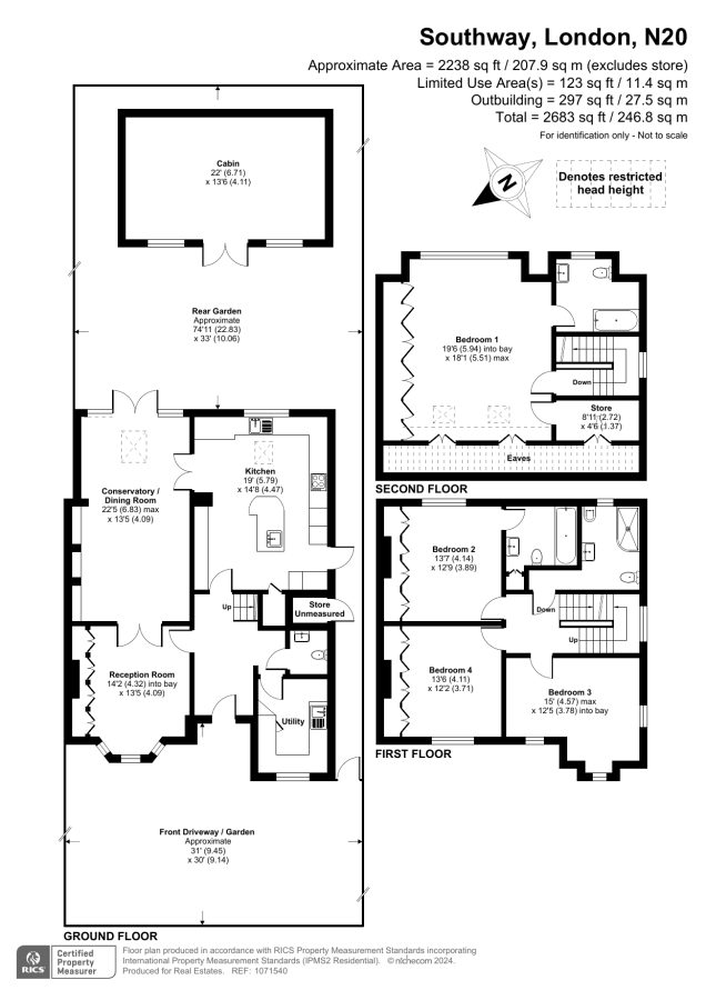
*AVAILABLE JANUARY * FURNISHED * A 4 bedroom, 3 bathroom (2 en suite) semi-detached home situated in the heart of Totteridge and offering spacious and well proportioned accommodation. Shops and restaurants at the High Road, Whetstone together with Totteridge & Whetstone tube station are close by.
To the rear of the property is a landscaped garden of approx 85′ with decked terrace leading to lawn with a detached brick built studio.
* Spacious Entrance Hall with solid wood flooring * Lounge with feature fireplace and access to terrace * Dining Room * Kitchen/Breakfast Room with integrated appliances and tiled underfloor heating * Laundry Room * Guest Cloakroom * 3 Bedrooms and 2 baths (1 en suite) to 1st floor * Master Bedroom with Walk-in wardrobe and En Suite Bath to 2nd floor *
-
Southway
Totteridge
N20 8DD
- PDF Brochure
Floor Plan


