Totteridge N20
Price: £3,750,000
Council Tax Band: H
Freehold
Enquire 020 8445 3132
-
An elegant country retreat built by ‘Oliver and Saunders’ approx 20 years ago having been recently refurbished throughout. This family house is situated off Totteridge Lane midway between Pine Grove and Links Drive, within walking distance to Totteridge & Whetstone Northern Line tube station and Whetstone High Road’s amenities.
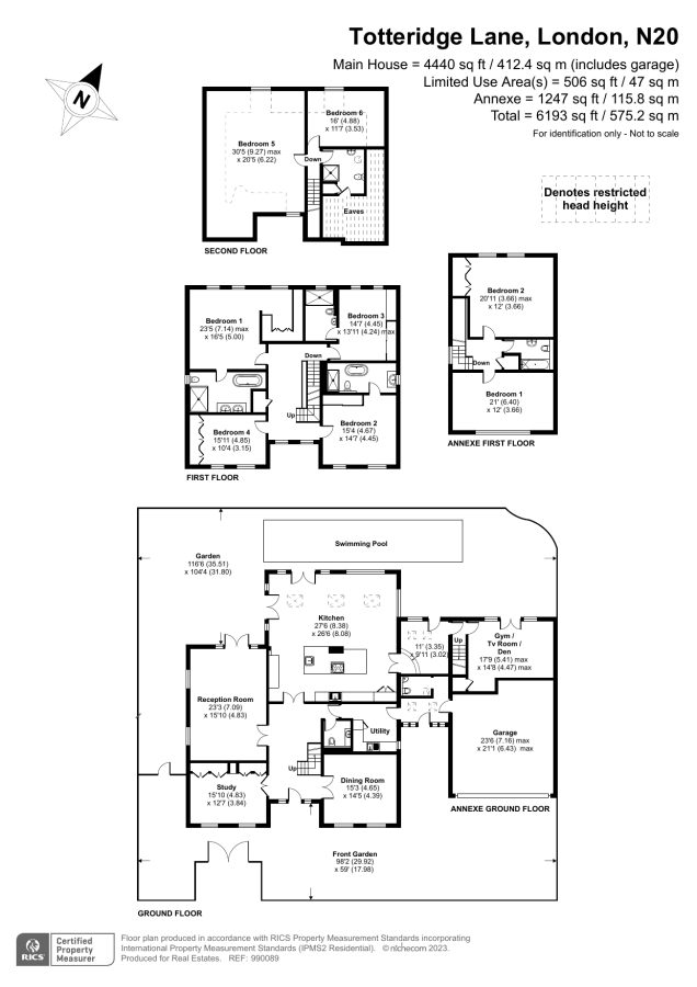
Built to a very high specification, this elegant home is approached via electric gates and is extremely well screened and secluded, with large, well manicured gardens and an outdoor swimming pool. There is parking for numerous cars and a double garage to the side. In addition to the main house there is also an internal link to an annexe providing the double garage, tv/den, lounge, bedroom and bathroom. This additional accommodation is ideally suited as a ‘teenage area’, ‘granny annexe’, ‘staff annexe’ or ‘home office’. It also benefits from approx. 500 sq ft of storage in the roof space which is currently carpeted and can be converted if required.
Located just 9 miles from Central London, Totteridge is surrounded by open greenbelt countryside and offers a wealth of sporting facilities including South Herts Golf Club, Totteridge Tennis and Cricket Clubs and horse riding.
Totteridge Green is home to the renowned Orange Tree public house which dates back to 1665. Totteridge underground station (Northern Line) is easily accessible as is the multiple shopping centre at Whetstone which includes Marks & Spencer, Boots, Waitrose and a number of high class boutiques and restaurants. Junction 23 of the M25, A1M and M1, which provide fast routes to all major airports are also within easy distance, as is Brent Cross shopping centre. -
Totteridge Village
Totteridge
N20 8JJ
- PDF Brochure
Floor Plan


