Totteridge, N20
Price: £1,250,000
Council Tax Band: H
Freehold
Enquire 020 8445 3132
-
FIRST TIME ON THE MARKET IN OVER 50 YEARS- A rare opportunity to acquire this four-bedroom detached chalet bungalow, offering immense potential and situated in a highly sought-after cul-de-sac in the heart of Totteridge Village.
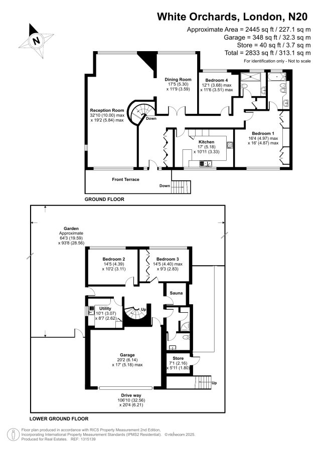
In need of full modernisation, this unique property provides approximately 2,800 sq ft of accommodation (including garage) arranged over two floors (ground and lower ground), with scope to create a stunning family home tailored to your taste and lifestyle.
Approached via a generous front garden and driveway, the property benefits from a double garage and off-street parking, along with a private rear garden extending to approximately 60 ft.
Ideally located moments from Greenbelt land and South Herts Golf Club, the property is also within walking distance of Totteridge Green, Totteridge Common, and the popular Orange Tree public house. White Orchards enjoys a prime Totteridge location with easy access to the boutiques, cafés, and restaurants of Whetstone High Road, as well as excellent local schools, places of worship, and Totteridge & Whetstone Underground Station (Northern Line). Major road links in and out of London are also within easy reach.
For further information or to arrange a viewing, please contact our Totteridge office. Sole Agent.
-
White Orchards
Totteridge
London N20 8AQ
- PDF Brochure
EPC
Floor Plan


