Woodside Park N12
Price: £1,195,000
Council Tax Band: G
Freehold
Enquire 020 8445 6387
-
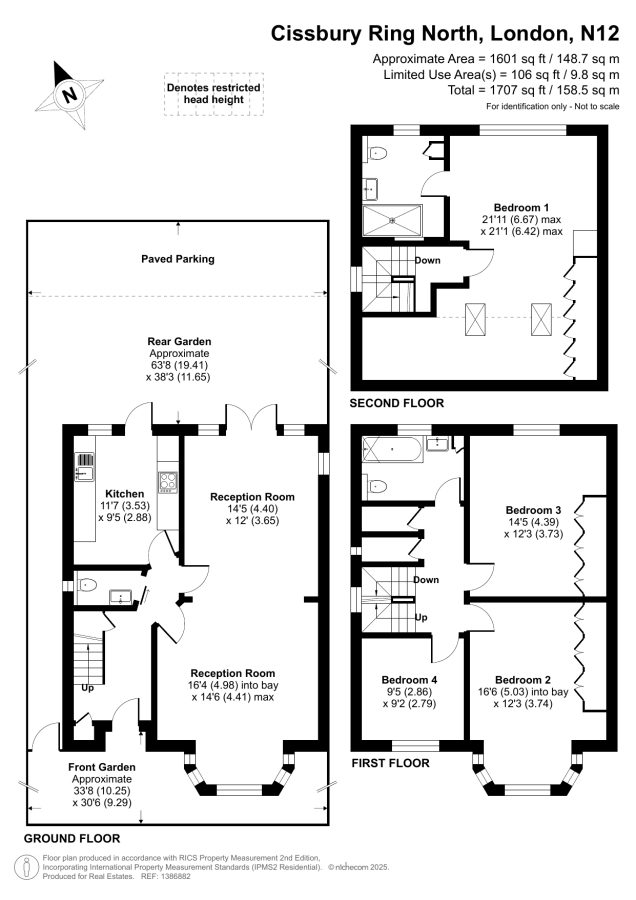
* CHAIN FREE * Real Estates are pleased to offer for sale this DETACHED family home presented in good condition throughout and located in the heart of Woodside Park.
The downstairs accommodation comprises a double through reception room, a large separate kitchen and a guest WC off the hallway. Upstairs, there are three bedrooms, storage cupboards and the main bathroom on the first floor, whilst the loft has been converted into a principal bedroom with modern en-suite bathroom.
Externally, there are mature front and rear gardens, plus PRIVATE PARKING accessed via a garage door on the adjacent street. There is further potential to extend to the side of the plot (STPP).
Cissbury Ring North is a short walk to the popular cafes on Sussex Ring plus Woodside Park Station on the Northern Line. Nearby primary schools include Woodridge and Frith Manor.
SOLE AGENT
-
Cissbury Ring North
Woodside Park
N12 7AN
- PDF Brochure
Floor Plan


