Woodside Park N12
Guide Price: £1,265,000
Council Tax Band: G
Freehold
Enquire 020 8445 6387
-
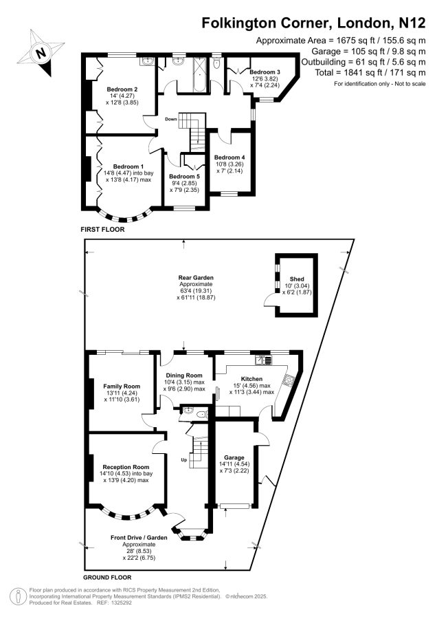
Real Estates are delighted to bring to the market for the FIRST TIME IN OVER 40 YEARS this EXTENDED FIVE BEDROOM SEMI-DETACHED wide family home set in the corner of one of Woodside Park’s most premier cul-de-sacs with stunning REAR GREEN VIEWS over Finchley Golf Course.
Upon entry into the spacious hallway, the ground floor accommodation comprises a front reception room with bay window, a separate dining room, and a snug which leads into the eat-in kitchen. A guest WC and integral garage complete the downstairs.
To the first floor, there are two large double bedrooms, one smaller double and two singles, plus a separate WC and the bathroom. Further extensions are possible into the loft and at the rear (STPP).
Externally, there is a private driveway for two cars, with electric charger wiring installed, as well as an approximate 60’x60′ back garden with patio and shed. There is a gate providing access to the edge of the golf course too.
Folkington Corner is situated in the catchment area for Frith Manor Primary School. Woodside Park Underground Station is within a mile, whilst the popular coffee shops on Sussex Ring are nearby.
-
Folkington Corner
Woodside Park
N12 7BH
- PDF Brochure
Floor Plan


