Woodside Park N12
Price: £2,710 PCM
Deposit: £3,126
Length of Tenancy: Long
Council Tax Band: E
Enquire 020 8445 6387
-
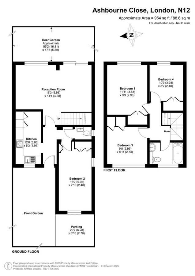
AVAILABLE NOW * UNFURNISHED * – Situated within a stone’s throw to Woodside Park Underground Station – Northern Line, this end of terrace house comprises of 3 large bedrooms on the first floor and a bedroom on the ground floor, fitted kitchen and a large ground floor study/ tv room and living room with access to rear garden.
The property has own driveway, for parking, -
Ashbourne Close
Woodside Park
N12 8SB
- PDF Brochure
Floor Plan


