Woodside Park N12
Guide Price: £1,250,000
Council Tax Band: G
Freehold
Enquire 020 8445 6387
-
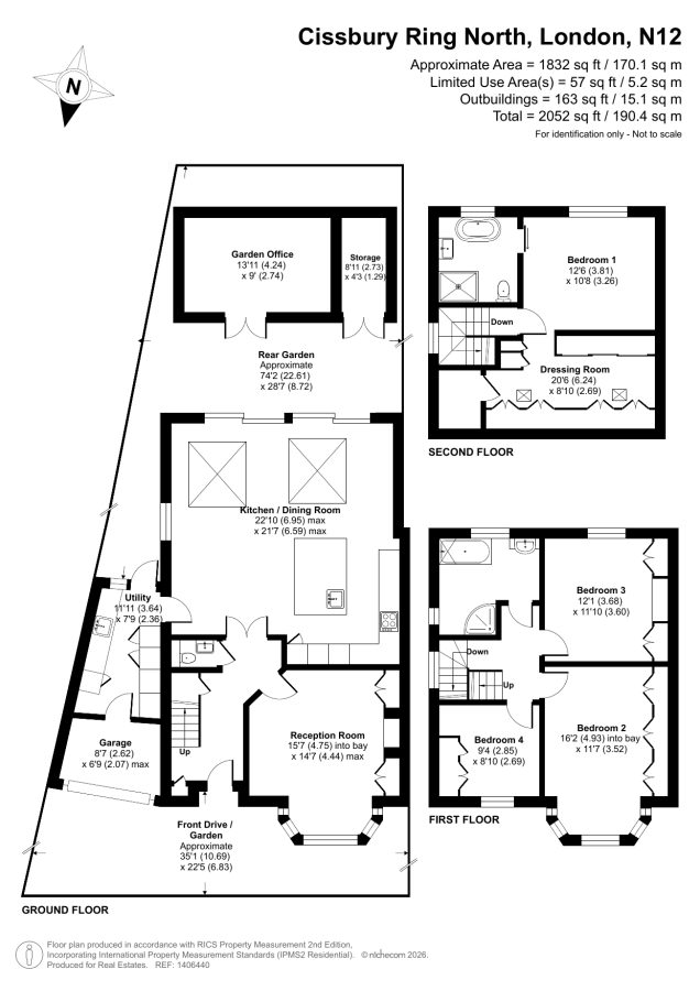
Real Estates are delighted to offer for sale this stunning FOUR BEDROOM TWO BATHROOM SEMI-DETACHED family home set in the heart of Woodside Park. The property has been designed, extended and renovated to an extremely high specification throughout.
The ground floor comprises a separate front reception room and guest WC under the stairs, with the rear of the house a vast open plan kitchen, dining and living space, featuring air conditioning, underfloor heating and glass sliding doors opening onto the patio and SOUTH FACING garden with POWERED OUTHOUSE. There is a garage and utility area to the side of the house too.
The first floor provides two double bedrooms and one single bedroom, all with fitted wardrobes, and the main bathroom, whilst the loft has been thoughtfully converted into a spacious principal suite, including an en-suite with bath and shower plus walk-in-wardrobe style storage.
Cissbury Ring North is a desirable residential street just a short walk to Woodside Park Underground Station, the popular coffee shops on Sussex Ring as well as the greenery of Riverside Park or Folly Brook and Frith Manor Primary School.
SOLE AGENT
-
Cissbury Ring North
Woodside Park
N12 7AL
- PDF Brochure
Floor Plan


