Woodside Park N12
Price: £1,169,995
Council Tax Band: F
Enquire 020 8445 6387
-
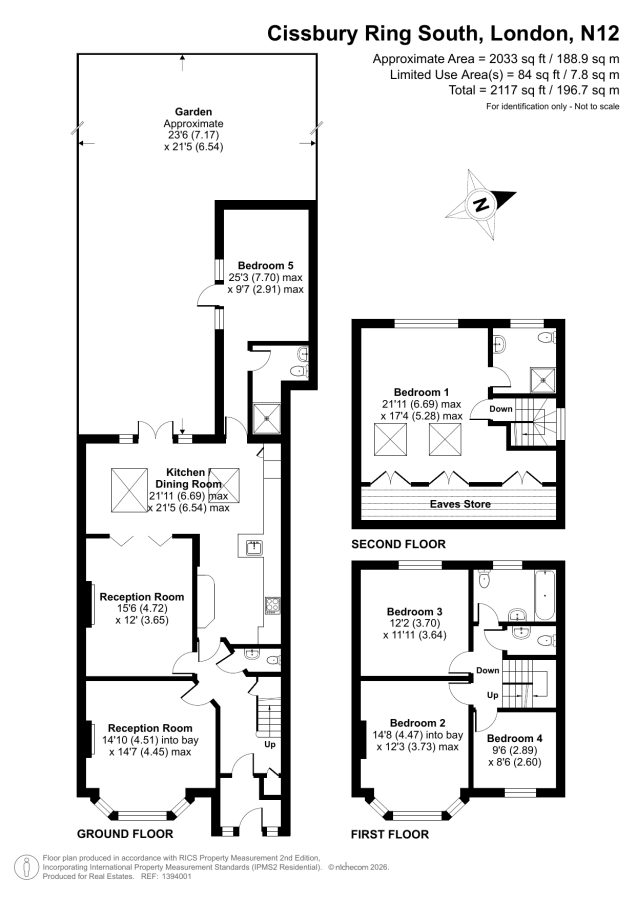
* CHAIN FREE SALE * Real Estates are pleased to offer this large FIVE BEDROOM, THREE BATHROOM semi-detached family home set on a desirable residential street in Woodside Park.
* GUEST CLOAKROOM * TWO RECEPTIONS * KITCHEN/BREAKFAST ROOM * THREE BEDROOMS & BATHROOM ON FIRST FLOOR * PRINCIPAL BEDROOM & EN SUITE ON SECOND FLOOR * GROUND FLOOR ANNEXE WITH BEDROOM & EN SUITE * APPROX 60 FT REAR GARDEN * OFF STREET PARKING *
This well presented property is situated close to local shops and cafes on Sussex Ring, as well as the 221 & 326 bus routes plus Woodside Park Station on the Northern Line.
Catchment for Frith Manor Primary School. SOLE AGENT
-
Cissbury Ring South Woodside Park
N12 7BJ
- PDF Brochure
Floor Plan


