Woodside Park N12
Price: £949,950
Council Tax Band: G
Freehold
Enquire 020 8445 6387
-
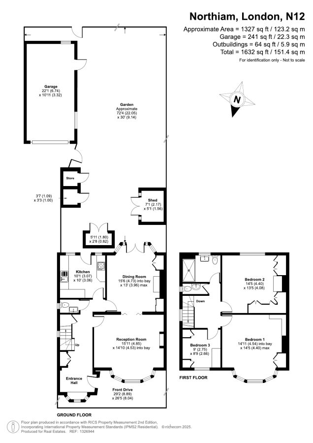
* CHAIN FREE * Real Estates are delighted to present this Leyland built THREE BEDROOM SEMI-DETACHED family home situated in the heart of Woodside Park, with rear green views overlooking the Dollis Valley.
Upon entry into the spacious hallway, the ground floor accommodation comprises two large reception rooms, a separate kitchen and a guest WC.
To the first floor, there are two double bedrooms, one single bedroom, a WC and the bathroom. Extensions are possible out the back and into the loft (STPP).
Externally, there is a driveway for two cars, an approximate 70 foot SOUTH FACING garden and a detached garage.
Northiam is ideally situated for Woodside Park Underground Station, as well as being within the catchment area for Woodridge Primary School. There is a plethora of nearby parkland, shops and cafes.
SOLE AGENT
-
Northiam
Woodside Park
N12 7ET
- PDF Brochure
Floor Plan


