Arkley EN5
Price: £1,499,995
Council Tax Band: H
Freehold
Enquire 020 8445 3132
-
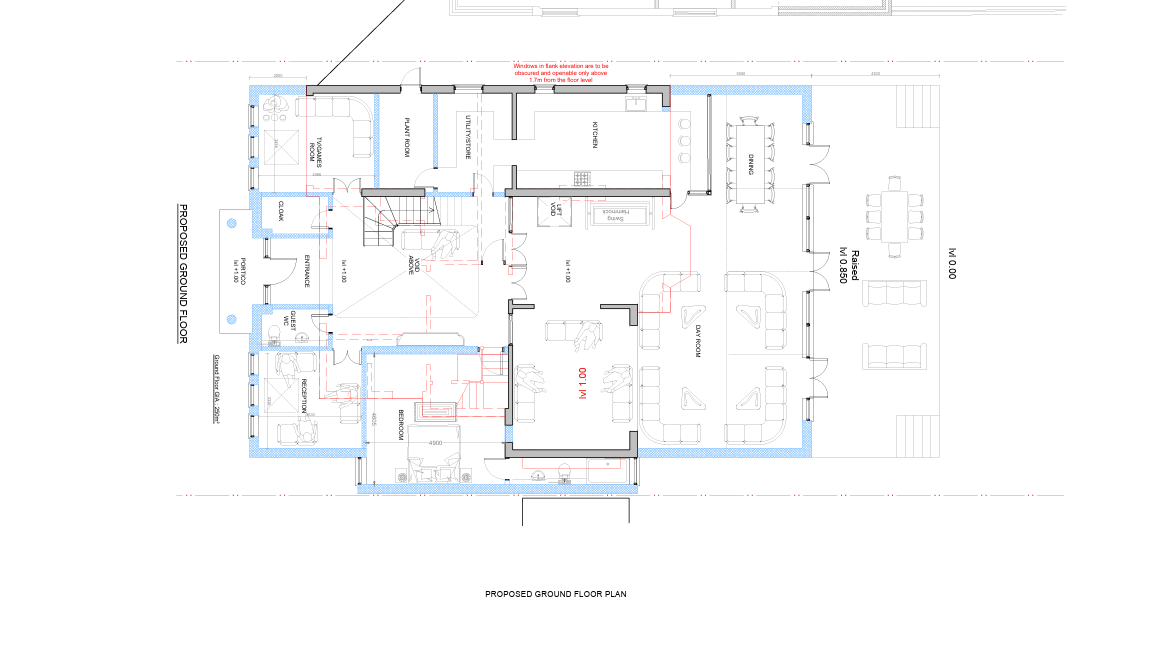
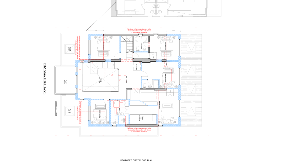
Exceptional Development Opportunity – Barnet Road, Arkley. Real Estates are delighted to offer for sale this superb individual plot located on the highly desirable Barnet Road in Arkley. Planning permission has been granted for a magnificent new home of approximately 6,500 sq. ft., designed to provide luxurious and contemporary living in one of North London’s most prestigious areas.
This rare opportunity allows purchasers to create their dream residence in a peaceful and leafy setting, perfectly positioned within easy reach of Central London. The location benefits from excellent transport links, with the M1 and M25 motorways close by, and nearby stations at Totteridge, Mill Hill, and High Barnet providing convenient access to the City and West End.
There is also potential to extend the existing house which currently comprises of 2,389 sq. ft. (not including garage) STTP.
Arkley is also well served by a number of outstanding schools, including Haberdashers’ Aske’s, Mill Hill, Aldenham, Belmont, and Queen Elizabeth’s, many of which offer dedicated coach services through the area. This is truly a unique opportunity to build a substantial and impressive home in an exclusive North London location.
-
Barnet Road
Arkley
EN5 3HB
- PDF Brochure
Floor Plan
Floor Plan
Floor Plan


